The photos you provided may be used to improve Bing image processing services.
Privacy Policy
|
Terms of Use
Can't use this link. Check that your link starts with 'http://' or 'https://' to try again.
Unable to process this search. Please try a different image or keywords.
Try Visual Search
Search, identify objects and text, translate, or solve problems using an image
Drag one or more images here,
upload an image
or
open camera
Drop images here to start your search
To use Visual Search, enable the camera in this browser
All
Search
Images
Inspiration
Create
Collections
Videos
Maps
News
More
Shopping
Flights
Travel
Notebook
Top suggestions for Block Load
Hoist
Load Block
Lower
Load Block
Block Load
Game
Load Block
for Crane
Rota
Load Block
Motor
Load Block
Load Block
End Cap
Load Block
Assembly
Bridgegate
Load Block
200T
Load Block
5 Ton Hoists
Load Block
Garretson
Load Block
Load Block
and Main Hook
Load Block
Shiv
Natural Gas
Load Block
Load Block
Example
Rotating
Load Block
Load
-Holding Block
Parker
Load Block
Wooden
Load Block
Mobile Crane
Load Block
Load Cell Block
for Shipping
Load Block
for Lawn Mower
1 Ton Test
Load Block
Braden
Load Block
Window
Load Block
Load Block
Magnum
Load Block
Dimensioms
Inspecting
Load Block
Trailer Load Block
Assembly
Steel Cable
Load Block
110 Ton
Load Block
Block
Loader
Load Block
Upper
Power Distribution
Block
3 Ton Crane
Load Block
Load Block
and Tip Block
20Ton Crane
Load Block
Load Block
Schematics
45 Ton
Load Block
Load Block
Sheaves On a Crane
Traveling Load Block
Crane
2 Sheave
Load Block
Load Block
Crane Rig
Center Load Block
Over Load
Block and Load
Toad Man
Lacing a
Load Block
Single Shive
Load Block
CM Hoist Lower
Load Block Single Part
Crane Load Block
Parts
Refine your search for Block Load
End
Cap
Natural
Gas
Mobile
Crane
3 Ton
Crane
Transfer
Window
Loader
Vehicle
Overhead
Hoist
Steel
Cable
What Is
Electrical
Overhead
Crane
Crane
Rig
Truck Box
Crane
Bridge
Crane
Phone
Wallpaper
Cell
Tower
Air
Suspension
Crane
Motor
41047601
HDPE
Dead
Turning
LC
$15
Main
Manitex
Assembly
Upper
Map
Parts
Switch
RLB
Rota
Explore more searches like Block Load
Mini
Wood
Hold
2$
Pic
Brass
PT
Game
Johnson
Craft
Three
1250 Lb
Crane
Miller
Double
High
Holding
Oriental
Crane
Maintainer
Crane
Propane
Generator
People interested in Block Load also searched for
2
Manitex15t
1 Sheave
41047601
Lift Tech
Assemblies
for Hoists
Superstructure
Hoist
Campbell 1100
Lbs Working
Autoplay all GIFs
Change autoplay and other image settings here
Autoplay all GIFs
Flip the switch to turn them on
Autoplay GIFs
Image size
All
Small
Medium
Large
Extra large
At least... *
Customized Width
x
Customized Height
px
Please enter a number for Width and Height
Color
All
Color only
Black & white
Type
All
Photograph
Clipart
Line drawing
Animated GIF
Transparent
Layout
All
Square
Wide
Tall
People
All
Just faces
Head & shoulders
Date
All
Past 24 hours
Past week
Past month
Past year
License
All
All Creative Commons
Public domain
Free to share and use
Free to share and use commercially
Free to modify, share, and use
Free to modify, share, and use commercially
Learn more
Clear filters
SafeSearch:
Moderate
Strict
Moderate (default)
Off
Filter
Hoist
Load Block
Lower
Load Block
Block Load
Game
Load Block
for Crane
Rota
Load Block
Motor
Load Block
Load Block
End Cap
Load Block
Assembly
Bridgegate
Load Block
200T
Load Block
5 Ton Hoists
Load Block
Garretson
Load Block
Load Block
and Main Hook
Load Block
Shiv
Natural Gas
Load Block
Load Block
Example
Rotating
Load Block
Load
-Holding Block
Parker
Load Block
Wooden
Load Block
Mobile Crane
Load Block
Load Cell Block
for Shipping
Load Block
for Lawn Mower
1 Ton Test
Load Block
Braden
Load Block
Window
Load Block
Load Block
Magnum
Load Block
Dimensioms
Inspecting
Load Block
Trailer Load Block
Assembly
Steel Cable
Load Block
110 Ton
Load Block
Block
Loader
Load Block
Upper
Power Distribution
Block
3 Ton Crane
Load Block
Load Block
and Tip Block
20Ton Crane
Load Block
Load Block
Schematics
45 Ton
Load Block
Load Block
Sheaves On a Crane
Traveling Load Block
Crane
2 Sheave
Load Block
Load Block
Crane Rig
Center Load Block
Over Load
Block and Load
Toad Man
Lacing a
Load Block
Single Shive
Load Block
CM Hoist Lower
Load Block Single Part
Crane Load Block
Parts
351×280
block-load.software.informer.com
Block Load Download - Powerful, fully featured HVAC load estimating progr…
469×280
block-load.software.informer.com
Block Load Download - Powerful, fully featured HVAC load estimating program
768×1024
scribd.com
HVAC Load Calculation | PDF | …
768×543
scribd.com
HVAC Cooling Load Summary Sheet | PDF
Related Products
Cell
Bearing Vest
Loading Ramp
799×1243
block-machine.net
How Much Weight Can A …
2500×1667
block-machine.net
How Much Weight Can A Cinder Block Hold (Maximum Load)?
1200×1100
dwglab.com
Block-wall connection with the slab DWG CAD Det…
1920×1080
gamereactor.eu
Block N Load Review - Gamereactor
1200×1500
storage.googleapis.com
Plummer Block Load Capacity at Angela L…
1200×1100
storage.googleapis.com
Glass Block Load Bearing Wall at Aurora Mcdonald blog
637×191
rkaindustrialsolutions.com.au
L/Block Load Chain Guide - RKA Industrial Solutions
1620×2292
studypool.com
SOLUTION: Blockload calc…
850×395
researchgate.net
Block Diagram for Building Load Forecasting | Download Scientific Diagr…
Refine your search for
Block Load
End Cap
Natural Gas
Mobile Crane
3 Ton Crane
Transfer Window
Loader Vehicle
Overhead Hoist
Steel Cable
What Is Electrical
Overhead Crane
Crane Rig
Truck Box Crane
680×408
www.fiverr.com
Do a manual j and s block load calculation by Moman327 | Fiverr
680×408
www.fiverr.com
Do a manual j and s block load calculation by Moman327 | Fiverr
880×535
lennoxpros.com
How to do a Block Load Calculation | LennoxPros
1056×648
lennoxpros.com
How to do a Block Load Calculation | LennoxPros
2048×1536
elphick.github.io
Load Block Model — geometallurgy documentation
1398×868
up.codes
Section 8: VICTOR Residence - Block Load, Ohio Residential Load ...
1358×851
up.codes
Section 7: Vatilo Residence — Block Load, Baltimore Residential Load ...
850×581
researchgate.net
Cooling and heating load prediction block diagram | Dow…
825×1237
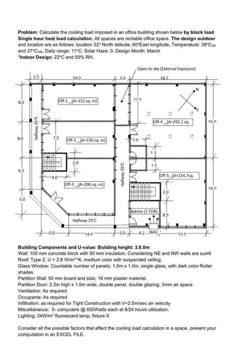
chegg.com
Solved Problem: Calculate the c…
768×1024
scribd.com
Zone HVAC Load Summar…
1024×920
db-excel.com
Hvac Load Calculation Spreadsheet through…
540×1024
engineeringdesignresources.com
HVAC Load Calculations …
2127×1200
yumpu.com
Heat Load Calculation | HVAC Design | HVAC System
768×1024
storage.googleapis.com
Hvac Building Load Calculation at Alliso…
638×478
slideshare.net
HVAC heating load -cooling-load-calculation.ppt
638×478
slideshare.net
HVAC heating load -cooling-load-calculation.ppt
638×478
slideshare.net
HVAC heating load -cooling-load-calculation.ppt
Explore more searches like
Block Load
Mini Wood
Hold
2$ Pic
Brass PT
Game
Johnson
Craft Three
1250 Lb Crane
Miller
Double High
Holding
Oriental Crane
2048×1536
slideshare.net
HVAC heating load -cooling-load-calculation.ppt
2048×1536
slideshare.net
HVAC heating load -cooling-load-calculation.ppt
2048×1536
slideshare.net
HVAC heating load -cooling-load-calculation.ppt
2048×1536
slideshare.net
HVAC heating load -cooling-load-calculation.ppt
2048×1536
slideshare.net
HVAC heating load -cooling-load-calculation.ppt
Some results have been hidden because they may be inaccessible to you.
Show inaccessible results
Report an inappropriate content
Please select one of the options below.
Not Relevant
Offensive
Adult
Child Sexual Abuse
Feedback